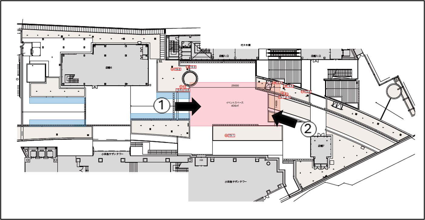
新宿サザンテラス広場
新宿駅南口/新南口から徒歩1分の好アクセスに位置し、新宿エリアでは数が少ない開放的な空間です。
南口エリアを通行する人から、代々木方面を行き来する人に対しても訴求できるイベントスペースです。

- 媒体名称:新宿サザンテラス広場
- 媒体所在地東京都渋谷区代々木2-2-1
- 使用可能面積要調整
- 構造屋外スペース
- その他タイル、車体乗り入れ可、飲食、物販イベント可、ガス使用不可
スペース

①
②
新宿駅南口/新南口から徒歩1分の好アクセスに位置し、新宿エリアでは数が少ない開放的な空間です。
南口エリアを通行する人から、代々木方面を行き来する人に対しても訴求できるイベントスペースです。

